1. Thông tin Ngắm nhìn 15+ mẫu thiết kế nhà 1 tầng 3 phòng ngủ 80m2 đẹp ngất ngây
Nếu bạn đang muốn tìm kiếm một không gian sống đơn giản nhưng vẫn đảm bảo tính tiện nghi và thẩm mỹ thì đừng bỏ qua những mẫu thiết kế nhà 1 tầng 3 phòng ngủ 80m2. Đây được coi là một giải pháp hoàn hảo cho những gia đình ít thành viên, muốn sống trong một không gian đầm ấm nhưng không đánh đổi sự tiện nghi. Cùng với chi phí xây dựng hợp lý, nhà 1 tầng 3 phòng ngủ rộng 80m2 hiện nay là lựa chọn của rất nhiều gia đình. Hãy cùng KFA tìm hiểu trong bài viết hôm nay nhé!

Tổng hợp các mẫu thiết kế nhà 1 tầng 3 phòng ngủ 80m2 đẹp nhất 2023
Các mẫu thiết kế nhà 1 tầng 3 phòng ngủ 80m2 không chỉ đáp ứng nhu cầu sinh hoạt hàng ngày mà còn tạo ra không gian sống gần gũi, ấm áp. Dưới đây là một số mẫu thiết kế tiêu biểu được KFA tổng hợp mà bạn đọc có thể tham khảo!
Mẫu nhà mái Thái 1 tầng 3 phòng ngủ 80m2
Mẫu nhà 1 tầng mái Thái có lẽ là kiểu kiến trúc đã quá quen thuộc đối với người Việt Nam, đặc biệt là ở vùng nông thôn. Kiến trúc mái Thái tạo nên sự thanh thoát, uyển chuyển cho ngôi nhà. Đồng thời, kiểu mái này có khả năng chống nóng, chống thấm rất tốt.


Đặc biệt, nhà mái Thái còn có thể kết hợp với đa dạng các phong cách thiết kế khác nhau, từ cổ điển, tân cổ điển cho đến hiện đại, từ nhà phố cho đến nhà vườn…


Mẫu nhà mái bằng 1 tầng 3 phòng ngủ 80m2
Nhà mái bằng cũng là một trong những kiểu kiến trúc đã gắn bó với người Việt từ rất lâu. Tuy nhiên, theo nhịp sống hiện đại, các KTS đã sáng tạo và làm mới thiết kế không ngừng, mang đến những không gian sống mới mẻ và trẻ trung hơn.

Nhà 1 tầng mái bằng tạo cảm giác kiên cố, chắc chắn, chống lại những tác động tiêu cực và sự khắc nghiệt của thời tiết. Một trong những lý do khiến nhà mái bằng được ưa chuộng chính là chi phí xây dựng vừa phải, phù hợp với kinh tế của nhiều gia đình.




>>>Xem thêm:
Mẫu nhà chữ L 1 tầng 3 phòng ngủ 80m2
Kiểu nhà chữ L sẽ là giải pháp tối ưu khi xây dựng nhà 1 tầng 3 phòng ngủ 80m2. Với thiết kế kiểu nhà chữ L, gia chủ dễ dàng bố trí các phòng công năng nhưng vẫn tạo tính liên kết giữa các phòng với nhau.

Không những thế, kiểu nhà chữ L có thể xây dựng trên nhiều hình dạng đất khác nhau. Nếu gia đình có trẻ nhỏ hay xe ô tô, thiết kế nhà chữ L cho phép tạo ra một khoảng sân vườn để phục vụ mục đích vui chơi, làm bãi đỗ xe…




Mẫu nhà sân vườn 1 tầng 3 phòng ngủ 80m2
Những ngôi nhà 1 tầng hiện nay là lựa chọn số 1 ở các vùng nông thôn hoặc ngoại ô, nơi có diện tích đất rộng. Gia chủ chỉ sử dụng 80m2 để xây dựng nhà ở, phần còn lại sẽ được thiết kế thành không gian sân vườn.

Đây được coi là xu hướng thịnh hành hiện nay khi nhiều người “bỏ phố về quê”, từ bỏ sự chật chội và ngột ngạt chốn phồn hoa đô thị. Với khoảng sân vườn rộng thoáng, các thành viên sẽ có thêm không gian để vui chơi, trò chuyện, trồng cây cảnh, hoa lá, làm đẹp thêm khuông viên sống của mình.



Mẫu nhà 1 tầng 3 phòng ngủ 80m2 có gác lửng
Xây dựng gác lửng là giải pháp hàng đầu với những ngôi nhà có diện tích nhỏ nhưng cần nhiều không gian sinh hoạt. Với nhà 1 tầng, bạn có thể ưu tiên bố trí các không gian sinh hoạt chung ở tầng dưới, còn gác lửng có thể bố trí các không gian riêng tư hơn như phòng thờ hay phòng ngủ.



>>> Có thể bạn quan tâm:
40+ mẫu thiết kế nhà gác lửng 3 phòng ngủ tiện nghi, đẹp đến nao lòng
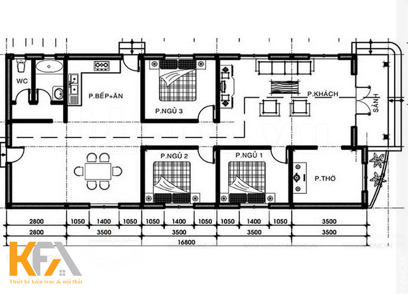
Một số bản vẽ mặt bằng nhà 1 tầng 3 phòng ngủ 80m2
Với nhà 1 tầng 3 phòng ngủ 80m2, về cơ bản sẽ bao gồm 1 phòng khách, 1 phòng bếp, 3 phòng ngủ và phòng WC. Tùy theo nhu cầu sử dụng của từng gia đình mà các KTS sẽ linh hoạt trong thiết kế nhằm tạo ra một không gian sống thoải mái và phù hợp nhất. Dưới đây là một số bản vẽ mặt bằng giúp bạn đọc hình dung dễ dàng hơn về thiết kế này.




Kinh nghiệm xây dựng và thiết kế nhà 1 tầng 3 phòng ngủ 80m2 tối ưu chi phí
Để xây dựng được một ngôi nhà 1 tầng 3 phòng ngủ 80m2 là cả quá trình làm việc nghiêm túc và cẩn thận, là việc hệ trọng của cả đời người. Do đó, gia chủ cần chú ý một số yếu tố quan trọng sau đây để không mắc phải những sai lầm đáng tiếc.
Chú ý bản vẽ thiết kế
Bản vẽ thiết kế nhà vô cùng quan trọng, là bước đầu tiên giúp bạn hình dung và bao quát được toàn bộ công trình. Nhìn vảo bản sẽ, bạn sẽ thấy được bố cục không gian, các chi tiết decor trang trí, từ đó, dễ dàng góp ý với KTS để sửa chưa những chỗ chưa hợp lý.

Lựa chọn đơn vị nhà thầu uy tín
Sau khi có bản vẽ thiết kế hoàn chỉnh, bước tiếp theo là bạn cần một đơn vị nhà thầu hoàn chỉnh để tin tưởng giao phó việc xây dựng công trình. Việc lựa chọn đơn vị nhà thầu cũng vô cùng quan trọng, quyết định đến chất lượng, tiến độ dự án cũng như chi phí mà bạn phải chi trả trên thực tế.
KFA là công ty thiết kế kiến trúc và nội thất với nhiều năm kinh nghiệm thực chiến trên thị trường. KFA cam kết mang đến cho bạn những công trình đẹp, bền vững và thoải mái với chế độ bảo hành bảo trì uy tín. Đến với KFA, khách hàng sẽ nhận được nhiều ưu đãi ở tất cả các hạng mục như thiết kế kiến trúc, thi công trọn gói, thiết kế nội thất,…
Cân nhắc việc phối màu ngoại thất và nội thất
Một vấn đề quan trọng khác trong thiết kế nhà 1 tầng 3 phòng ngủ 80m2 mà bạn cần lưu ý chính là việc lựa chọn màu sắc cho không gian nội thất và ngoại thất. Màu sắc giữa 2 không gian này cần có sự ăn nhập, hài hòa để có thể tạo nên một tổng thể hoàn thiện nhất.

Bài viết trên đây vừa cung cấp cho bạn đọc tất cả các thông tin cốt lõi nhất và các mẫu thiết kế nhà 1 tầng 3 phòng ngủ 80m2 đẹp năm 2023. Để được tư vấn trực tiếp và tìm hiểu thêm các thông tin chi tiết, quý khách hàng vui lòng liên hệ với KFA qua các kênh thông tin dưới đây:
Công ty thiết kế kiến trúc và nội thất KFA
- VPGD : FLC Complex – 36 Phạm Hùng – Mỹ Đình – Nam Từ Liêm – Hà Nội
- Xưởng nội thất: Chàng Sơn – Thạch Thất – Hà Nội
- Điện thoại : 0987.316.777
- Website: https://kfa.com.vn/
- Email: cskh.kfa@gmail.com