Nhà ống 4x9m là một trong những không gian thiết kế rất khó mang đến nhiều yêu cầu cả về kỹ thuật và bố trí không gian căn nhà. Mẫu nhà ống diện tích nhỏ thường xuất hiện rất nhiều tại những thành phố lớn, nơi đất trật người đông, giá bất động sản tăng cao. Chỉ với diện tích nhỏ nhưng yêu cầu thiết kế đày đủ không gian, khoa học, tiện nghi thì không phải KTS nào cũng có đủ kinh nghiệm để thực hiện. Với kinh nghiệm lâu năm trên thị trường thiết kế xây dựng nhà ống và thi công các công trình nội thất hàng đầu. Dưới đây KFA xin gửi tới quý độc giả TOP 10 bản vẽ thiết kế nhà ống 4x9m nổi bật nhất 2023. Mời mọi người cùng chiêm ngưỡng!
TOP 10 bản vẽ thiết kế nhà ống 4x9m nổi bật nhất 2023
Dưới đây KFA xin gửi tới quý khán giả TOP 10 mẫu thiết kế và bố trí không gian nội thất nhà ống ấn tượng nhất
Bản vẽ nhà ống 4x9m với 2 phòng ngủ
Bản vẽ mẫu thiết kế nhà ống 2 tầng dưới đây với thiết kế đơn giản, 2 phòng ngủ phù hợp với nhu cầu sinh hoạt của một gia đình nhỏ với 2 thế hệ bố mẹ và con cùng sinh sống. Mẫu thiết kế với không gian tầng 1 gồm phòng khách, bếp nhỏ, nhà vệ sinh cùng 2 khoảng sân nhỏ trước và sau. Thiết kế mang đến vẻ đẹp thông thoáng, mát mẻ cho ngôi nhà. Thiết kế tầng 2 với 2 phòng ngủ 1 lớn 1 nhỏ cùng nhà vệ sinh ở giữa thuận tiện cho việc sinh hoạt. Căn nhà được thiết kế với cầu thang phía trước gọn trong góc giúp tiết kiệm không gian sinh hoạt cho cả gia đình

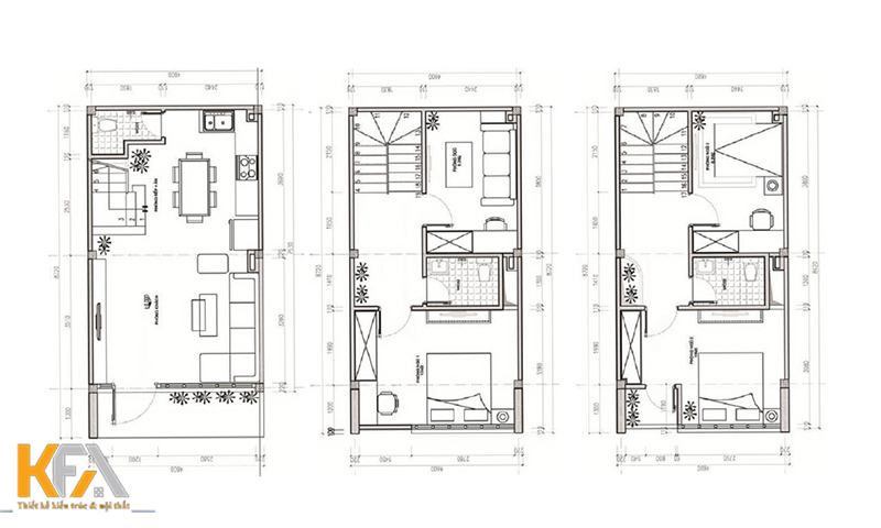
Bản vẽ thiết kế nhà ống 4x9m 3 phòng ngủ
Ngôi nhà ống 3 tầng diện tish 4x9m được các KTS bố trí không gian khoa học, hợp lý giúp tiết kiệm diện tích cũng như chi phí xây dụng cho gia chủ. Ngôi nhà được thiết kế với phòng khách và phòng bếp tại tầng 1. Tầng 2 là không gian sinh hoạt chung cùng phòng ngủ của bố mẹ. Không gian sinh hoạt chung cũng có thể dễ dàng thay đổi bằng một thiết kế phòng ngủ nhỏ dành cho khách đến chơi nhà cần nghỉ ngơi qua đêm. thiết kế tầng 3 gồm 2 phòng ngủ nhỏ rành cho 2 bạn nhỏ nghỉ ngơi và học tập. Mỗi tầng đều được thiết kế với nhà vệ sinh ở giữa đảm bảo tiện nghi sinh hoạt cho tất cả các thành viên trong gia đình.

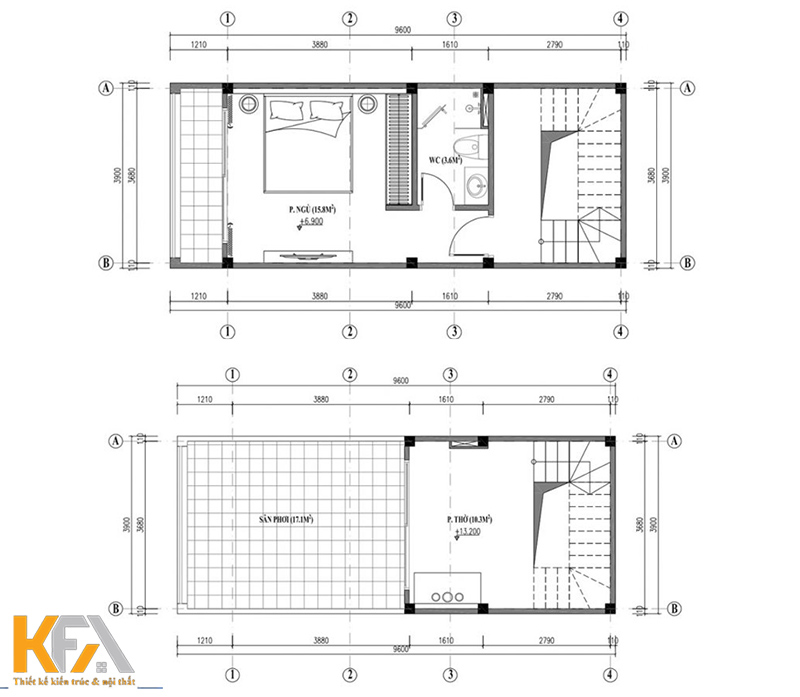
Thiết kế nhà ống 4x9m với 3 tầng 1 tum
Ngôi nhà được thiết kế với mặt tiền hơi chéo nhưng các KTS vẫn cố gắng bố trí các không gian khoa học, tiện ghi giúp cả gia đình có một ngôi nhà thông thoáng, thoải mái nhất. Ngôi nhà với thiết kế cầu thang cuối nhà gọn gàng kết hợp không gian nhà vệ sinh gầm cầu thang tại tầng 1 giúp tiết kiệm diện tích 1 cách tối đa.
Cũng như những thiết kế khác, ngôi nhà được bố trí với không gian tầng 1 là phòng khách, phòng bếp. Tầng 2 thiết kế với tầng master dành cho bố mẹ cùng nhà tắm lớn cùng bồn tắm tạo không gian thư giãn nghỉ ngơi ấn tượng. Thiết kế tầng 3 với phòng ngủ lớn dành cho 2 bạn với thiết kế giường đôi cùng 1 nhà vệ sinh tiện nghi. Tầng tum được gia chủ tận dụng với không gian thờ cùng sân phơi tiện nghi, thoáng mát.


Mẫu nhà ống 4x9m 4 tầng
Ngôi nhà ống 4 tầng với thiết kế đầy sang trọng mang đến vẻ đẹp hiện đại, ấn tượng hàng đầu. Ngôi nhà với vị trí mặt tiền thuận lợi kinh doanh nên gia chủ đã tận dụng làm khu vực kinh doanh đem lại thu nhập cho cả gia đình. Với mục đích kinh doanh nên tầng 1 được thiết kế không gian mở cùng cầu thang cuối nhà tiết kiệm diện tích. Để tạo sự tiện nghi trong sinh hoạt cho cả gia đình, KTS đã bố trí nhà vệ sinh dưới gầm tầng 1 để tạo sự thuận tiện trong sinh hoạt cho khách thuê mặt bằng.
Từ tầng 2 ngôi nhà được nới rộng ra phía lan can hơn 1m giúp không gian sinh hoạt trở nên thoáng rộng và thoải mái hơn. Tầng 2 được bố trí với không gian phòng khách cùng bếp gọn gàng. Tầng 3 là bố trí phòng ngủ dành cho cả gia đình. Chủ nhân ngôi nhà là một gia đình trẻ nên muốn tận dụng mọi không gian để có thể nâng cao thu nhập. Thiết kế tầng 4 là không gian phòng thờ nhỏ cùng sân thượng thoáng mát cùng sân phơi tiện nghi.


Nhà ống 4x9m với 5 tầng
Không gian thiết kế nhà ống mái chéo với diện tích 4x9m với 2 mặt tiền thoáng rộng cùng kiến trúc nhà trọ cho thuê tiện nghi đem lại nguồn thu lớn cho cả gia đình. Ngôi nhà được thiết kế tầng 1 với khu vực để xe chung cho khách thuê trọ cùng 1 phòng cho thuê với đầy đủ tiện nghi sinh hoạt cơ bản như giường, bếp, phòng tắm, khu vực phơi đồ. Các tầng 2-3-4-5 mỗi tầng được thiết kế với 2 phòng trọ cho sinh viên thuê với bố trí cầu thang giữa cùng không gian nội thất bên trong đầy đủ tiện nghi. Ngôi nhà là một trong những thiết kế nhà trọ nhận được rất nhiều sự quan tâm của chủ đầu tư, đặc biệt là tại Hà Nội. Nơi bất động sản luôn là một tài sản lớn và có khả năng sinh lời cao.



Mẫu nhà ống 4x9m với thiết kế mái thái cùng bản vẽ bố trí công năng
Ngôi nhà ống 4x9m được thiết kế với không gian 2 tầng cùng 1 tầng lửng giúp gia chủ thoải mái hơn trong việc sinh hoạt hàng ngày. Thiết kế tầng trệt của ngôi nhà là không gian để xe, khu vực bếp nấu bàn ăn, cùng nhà vệ sinh dưới gầm cầu thang gọn gàng. Tầng lửng là không gian thiết kế phòng khách đơn giản, sang trọng. Không gian tầng 3 là khu vực phòng ngủ lớn dành cho bố mẹ. Tầng 4 là phòng ngủ đôi dành cho các con. Mỗi tầng đều được thiết kế với nhà vệ sinh riệng tiện nghi và thoải mái nhất cho tất cả các thành viên trong sinh hoạt.
Đây cũng là mẫu thiết kế nhà ống nhận được nhiều sự quan tâm của khách hàng, đặc biệt là khách hàng trẻ với thiết kế mới, cùng bố trí không gian tiện nghi, khoa học hàng đầu.


Nhà ống 4x9m thiết kế hiện đại
Một mẫu thiết kế nhà ống diện tích 4x9m với bố trí không gian 4 tầng cùng mặt tiền kinh doanh tiếp theo được chúng tôi giới thiệu đến quý khách hàng. Mẫu thiết kế với tầng 1 là khu vực cho thuê kinh doanh với bố trí không gian thoảng, không phạm bất kỳ yếu tố phong thủy nào. Thiết kế tầng 2 là phòng khách + bếp cùng nhà vệ sinh tiện nghi. Tầng 3 là phòng ngủ cho cả gia đình. tầng 4 là thiết kế phòng thờ cùng không gian sắp xếp máy giặt cùng khu vực phơi đồ. Ngôi nhà ống còn được thiết kế với giếng trời giúp ngôi nhà thoáng mát, luôn tràn ngập ánh sáng.


Xem thêm:
BST 30 mẫu thiết kế nhà ống 3 tầng 5x20m đẹp, ấn tượng 2023
150+ Mẫu thiết kế mặt tiền nhà ống đẹp nhất 2023
Chia Sẻ 15 Bản vẽ thiết kế nhà ống 5x20m 1 tầng ĐỘC ĐÁO nhất
Nhà ống 4x9m thiết kế đơn giản
Mẫu thiết kế nhà ống 4x9m với bố trí không gian tiện nghi, phổ biến hàng đầu hiện nay. Thiết kế tầng 1 với phòng khách phía trước, phía sau là phòng bếp cùng cầu thang thiết kế ở giữa. Tầng 2 gia chủ bố trí 1 phòng sinh hoạt chung cùng phòng ngủ dành cho bố mẹ. Phòng sinh hoạt chung được gia đình tận dụng làm phòng đọc sách, làm việc hoặc những không gia giải trí khách cho các thành viên. Đây cùng là không gian dễ dàng chuyển đổi công năng thành 1 phòng ngủ khi gia đình có thêm thành viên. Thiết kế tầng 3 là khu vực thiết kế với phòng ngủ dành cho các con và phòng thờ trang trọng tại nơi cao nhất của ngôi nhà.

Thiết kế nhà ống tân cổ điển với diện tích 4x9m
Mẫu thiết kế nhà ống diện tích 4x9m với bố trí đầy đủ không gian sinh hoạt và cả khu vực để ô tô trong nhà. Thiết kế tầng 1 với gara ô tô cùng phòng bếp gọn gàng, tiện nghi. Tầng 2 được phân chia với không gian phòng khách và phòng ngủ cùng phòng ngủ. tầng 3 là không gian phòng ngủ, phòng thờ cùng sân phơi đồ thoáng rộng, thuận tiện cho cả gia đình sinh hoạt và nghỉ ngơi thoải mái.

Bản vẽ không gian nội thất nhà ống diện tích 4x9m nổi bật
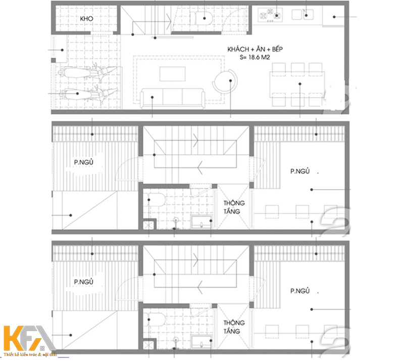
Mẫu thiết kế nhà ống 4x9m với không gian 3 tầng lầu cùng 4 phòng ngủ đang rất được chú ý hiện nay. Mẫu thiết kế với tầng 1 gồm phòng khách, phòng bếp khu vực để xe cùng 1 khoảng sân kho nhỏ, gọn gàng. Thiết kế tầng 2 + 3 với 2 phòng ngủ cùng nhà vệ sinh và cầu thang ở giữa. Thiết kế trên mang đến một không gian khoa học tiện nghi và rất thuận lợi cho sinh hoạt của các thành viên trong gia đình.

Kinh nghiệm thiết kế nhà ống 4x9m đầy đủ công năng
Dưới đây KFA xin gửi đến quý độc giả những kinh nghiệm thiết kế nhà ống 4x9m giúp gia chủ sở hữu một ngôi nhà ấn tượng, đầy đủ công năng.
Lựa chọn mẫu thiết kế đơn giản, trú trọng công năng
Với không gian nhà diện tích nhỏ thì việc thiết kế với phong cách kiến trúc đơn giản, đề cao công năng sử dụng cho ngôi nhà trở nên độc đáo và tiện nghi nhất. Diện tích sử dụng nhỏ nên việc trú trọng vào công năng sử dụng sao cho ngôi nhà tiện nghi khoa học nhất. Chính vì vậy mà thiết kế nhà 4x9m với không gian mở luôn được gia chủ và KTS ưu tiên lựa chọn hàng đầu.
Sử dụng đồ nội thất thông minh
Việc sử dụng nội thất thông minh cho nhà ống diện tích nhỏ là điều vô cùng cần thiết. Thiết kế đồ nội thất hiện nay đang dần được phát triển với đa dạng công năng sử dụng và thiết kế độc đáo, lạ mắt. Chính vì vậy mà những mẫu nội thất như ghế sofa giường, trang trí kết hợp bàn ăn hay tủ giường cũng đang ngày càng được ưu tiên lựa chọn nhiều hơn.

Lựa chọn đơn vị thiết kế thi công chuyên nghiệp
Công việc xây dựng bất kể là công trình nào thì chúng luôn mang trong mình tầm quan trọng nhất định. Chính vì vậy việc tìm một đơn vị thi công chuyên nghiệp, uy tín với quy trình triển khai rõ ràng, rành mạch như KFA là một trong những lưu ý hết sức quan trọng. Với KFA khách hàng có thể hoàn toàn yên tâm gửi gắm, đội ngũ của chúng tôi sẽ đảm bảo sẽ đưa đến quý khách hàng những mẫu thiết kế – thi công không thể hoàn hảo hơn.
KFA – Đơn vị thiết kế thi công nhà ống chuyên nghiệp, uy tín hàng đầu
Trải qua quá trình xây dựng và phát triển, KFA đã và đang nhận được rất nhiều sự tín nhiệm và tin tưởng từ phía khách hàng. Với sự tận tâm, chuyên nghiệp trong quá trình làm việc, KFA tự tin là một trong những đơn vị đi đầu trong lĩnh vực tư vấn thiết kế và thi công các công trình nhà ở dân dụng nói riêng và các công trình kiến trúc nói chung.
- KFA sở hữu đội ngũ kiến trúc sư, kỹ sư dày dặn kinh nghiệm, đã cho ra đời rất nhiều công trình được đánh giá cao.
- Phong cách làm việc trẻ trung, năng động và nhiệt huyết mang đến hiệu quả công việc cao, cùng sự hài lòng của khách hàng.
- Trước khi thi công KFA luôn có quy trình lên danh sách và dự toán báo giá một cách chi tiết, rõ ràng, đảm bảo không phát sinh bất kỳ cho phí bên ngoài trong quá trình thi công.
- KFA cam kết đảm bảo đúng tiến độ thi công công trình đã cam kết với khách hàng, cam kết sử dụng đúng chất liệu thi công theo báo giá cùng chất lượng đảm bảo nhất.

Công ty thiết kế kiến trúc và nội thất KFA
- VPGD : FLC Complex – 36 Phạm Hùng – Mỹ Đình – Nam Từ Liêm – Hà Nội
- Xưởng nội thất: Chàng Sơn – Thạch Thất – Hà Nội
- Điện thoại : 0987.316.777
- Website: https://kfa.com.vn/
- Email: cskh.kfa@gmail.com
Trên đây KFA vừa trình bày tổng hợp những thông tin chi tiết nhất với bài viết “Giới Thiệu TOP 10 bản vẽ thiết kế nhà ống 4x9m nổi bật nhất 2023”. Hy vọng bài viết đã mang đến cho quý khách hàng những thông tin cơ bản nhất về thiết kế kiến trúc – nội thất. Cảm ơn mọi người đã chú ý đón đọc, hẹn gặp lại vào những bài viết sau!